Facebook Instagram Linkedin
  • Chi siamo
  • Immobili
  • Servizi
  • Archivio
  • Contatti
  • Solo Affitti
  • Home page
...
...
...
...
...
...
...
...
...
...
...
...
...
...
...
...
...
...
...
...
...
...
...
...
...
...
...
...
...
...
...
...
...
...
...
...
...
VENDITA
RIF 5405
Appartamento con garage , Ceparana.
€ 128.000
VENDITA
RIF 5405
Appartamento con garage , Ceparana.
€ 128.000
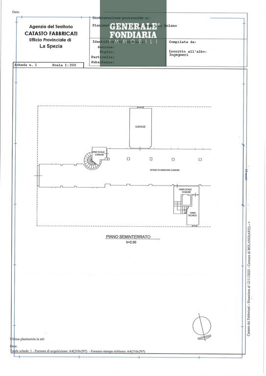
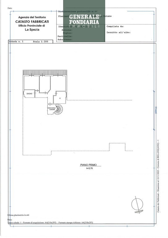
Metratura 76 mq
Vani 4 vani
Bagni 1 bagno
Camere 2 camere da letto
PLANIMETRIE

Appartamento con garage , Ceparana.
Bolano

-Rif.5405- Proponiamo IN ESCLUSIVA a Ceparana, in zona comoda e servita – con farmacia, tabacchino, bar e a un solo minuto dal centro – un appartamento situato in una palazzina composta da sole tre unità abitative.
L’ingresso si apre su un ampio disimpegno che conduce alla cucina e al soggiorno abitabile, entrambi molto luminosi e con accesso alla lunga balconata dotata di tenda da sole. Un secondo disimpegno accompagna alla zona notte, dove troviamo due camere da letto, anch’esse con uscita sulla balconata, e un bagno finestrato.
L’esposizione risulta ottima, garantendo luce e comfort per tutta la giornata.
Sono presenti vicino all'ingresso della palazzina diversi parcheggi scoperti, per più auto o ospiti.
Possibilità di acquistare il box di 24 mq ad Euro 20.000,00.
L'indirizzo sull'annuncio è approssimativo. Per visionare l'immobile contattateci al Tel. 0187939990, cell.3456023380,Saremo lieti di fissare un appuntamento. Generale Fondiaria Immobili, Ceparana Via Italia 34/36.

Richiedi Informazioni

RICHIEDI MAGGIORI INFO

Piano

1°

Totale Piani

2

Box

Singolo

Classe

G

Stampa   STAMPA
CONDIVIDI
 
generale fondiaria generale fondiaria

GENERALE FONDIARIA, Agenzia Ceparana


Telefono 0187 939990
Telefono 345 6023380
Viale Italia 34/36 - 19020 Ceparana (SP)

[[[["field6","contains","Other"]],[["show_fields","field8"]],"and"]]
1 Step 1
Richiedi Informazioni su questo immobile​
ACCETTAZIONE DELL'INFORMATIVA SULLA PRIVACY

Accetto il trattamento dei miei dati personali secondo quanto indicato nell'INFORMATIVA AI SENSI DELL'ART.13 DEL REGOLAMENTO (UE) 2016/679 *Codice in materia di protezione dei dati personali* nel rispetto della normativa sulla protezione dei dati personali Generale Fondiaria Immobili, in qualità di Titolare del trattamento, La informa sull'utilizzo dei Suoi dati, raccolti tramite questionario elettronico, ed i suoi diritti. Leggi L'informativa


keyboard_arrow_leftPrevious
Nextkeyboard_arrow_right
FormCraft - WordPress form builder

Proprietà Simili

Indipendente in vendita, Vezzano Ligure., Vezzano ligure

€ 500.000
VEDI SCHEDA

Terreno edificabile in vendita, Ceparana, Bolano

Trattativa riservata
VEDI SCHEDA

Appartamento nel cuore di Ceparana con garage, Bolano

€ 179.000
VEDI SCHEDA
Filtra le offerte
In Evidenza

Appartamento nel cuore di Ceparana con garage, Bolano

€ 179.000 €
VEDI SCHEDA

Appartamento di 4 vani, Migliarina, La spezia

€ 149.000 €
VEDI SCHEDA

Due appartamenti in trifamiliare, Lerici, Lerici

€ 290.000 €
VEDI SCHEDA

LA SPEZIA

Via del Canaletto 222 - 19125 La Spezia

Telefono 0187 523452

Fax 0187 284690

Email fondiaria2@generalefondiaria.it

CEPARANA

Viale Italia 34/36 - 19020 Ceparana (SP)

Telefono 0187 939990

Telefono 345 6023380

Email fondiaria3@generalefondiaria.it

generale fondiaria

COPYRIGHT © 2010 - 2025 MEDIANOVA SRLS

MEDIANOVA SRLS · Via del Canaletto 232 · La Spezia (SP)
P.IVA/C.F. 01444700114 · Capitale Sociale € 2500,00 · Iscrizione presso il Registro delle Imprese di LA SPEZIA n. REA-SP202689
Informativa sulla Privacy | Cookie policy | Impostazioni | Termini e condizioni del sito | Codice Deontologico Fimaa Italia
developed by Emotion Design
COPYRIGHT © 2010 - 2025 MEDIANOVA SRL

MEDIANOVA SRLS · Via del Canaletto 232 · La Spezia (SP)
P.IVA/C.F. 01444700114 · Capitale Sociale € 2500,00 · Iscrizione presso il Registro delle Imprese di LA SPEZIA n. REA-SP202689

Informativa sulla Privacy

Cookie policy

Termini e condizioni del sito

Codice Deontologico Fimaa Italia

developed by Emotion Design

Usiamo i cookie per fornirti la miglior esperienza d'uso e navigazione sul nostro sito web.

Puoi scoprire di più su quali cookie stiamo utilizzando o disattivarli nelle impostazioni.

Powered by  GDPR Cookie Compliance
Panoramica privacy

Questo sito utilizza i cookie che ci aiutano a migliorare la tua esperienza utente.

I cookie sono salvati sul tuo browser e ci servono, per esempio, a riconoscerti quando torni a visitare il nostro sito o a permetterci di capire quali sono le sezioni che trovi più interessanti e utili.

Cookie strettamente necessari

I cookie strettamente necessari dovrebbero essere sempre attivati per poter salvare le tue preferenze per le impostazioni dei cookie.

Se disabiliti questo cookie, non saremo in grado di salvare le tue preferenze. Ciò significa che ogni volta che visiti questo sito web dovrai abilitare o disabilitare nuovamente i cookie.

Cookie Analitici

Questo sito utilizza Google Analytics per raccogliere informazioni in forma anonima sul numero di visitatori del sito o le pagine più visitate.

Se mantieni questo cookie attivo ci permetti di migliorare il nostro sito.

Attiva i cookie strettamente necessari così da poter salvare le tue preferenze!

Cookie Policy

Scopri di più su quali cookie stiamo utilizzando. Cookie Policy

Appartamento con garage , Ceparana. Bolano
Appartamento con garage , Ceparana. Bolano
...
...